Who

Our work begins with listening — to our clients, to the builders who help bring each project to life, and to the site itself. We believe strong design is the result of clear communication, shared understanding, and disciplined collaboration from the very beginning.

Yenor Design Company is a design practice working primarily along the Atlantic coast, where environment, climate, and context are not constraints, but drivers of design. Our work spans scales — from bespoke private residences to community and workforce housing — unified by a commitment to performance, resilience, and enduring clarity.

We believe thoughtful design does not need to be complicated to be meaningful. Purposeful forms, carefully considered proportions, and intentional spatial relationships create environments that feel calm, grounded, and inevitable. By engaging contractors early in the process, we ensure our work is not only aspirational, but precise, efficient, and buildable.

Across all project types, our role is consistent: we act as translators. We take ideas, aspirations, and real-world constraints, and refine them into clear, cohesive designs that respond to context and are executed with care. Whether working at the scale of a single home or a larger community, we approach every project with the same rigor, attention, and respect for the people who will inhabit it.

What

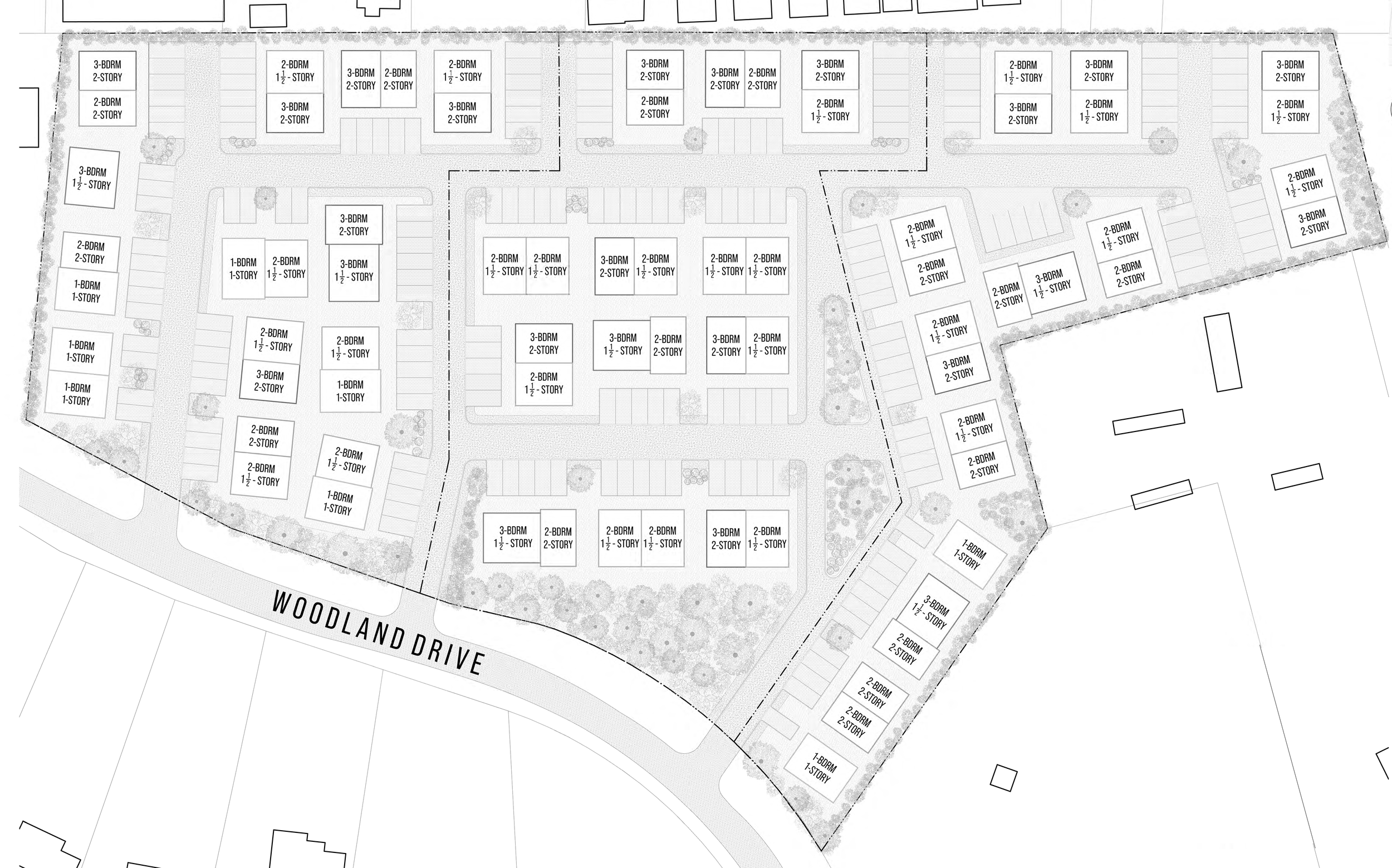
GROUND WORK

Site and master planning that set the stage at every scale.

ENVIRONMENTS

Communities and spaces envisioned as adaptable frameworks for living & gathering.

STRUCTURES

Architecture as the thoughtful joining of parts, designed with clarity and intent.

INTERIORS

Interiors shaped from the inside out, connecting form, material, and atmosphere.

How

Context Matters

Sites, communities, and natural conditions are never background — they shape the architecture, guiding design at every step.

Builder Collaboration

Every project begins with builders at the table. Their insight informs smarter decisions, making designs more efficient, practical, and lasting.

Client as Partner

Our role is to listen first. We translate ideas and aspirations into designs that realize their vision — and reveal new possibilities.

Clarity in Design

We strip away excess, focusing on simple forms and purposeful spatial organization that stand the test of time.

Adaptable Scale

From custom homes to high-density housing, our process flexes across scales, always with the same care and rigor.

Where

Interested in working together? Fill out some info and we will be in touch shortly. We can’t wait to hear from you!